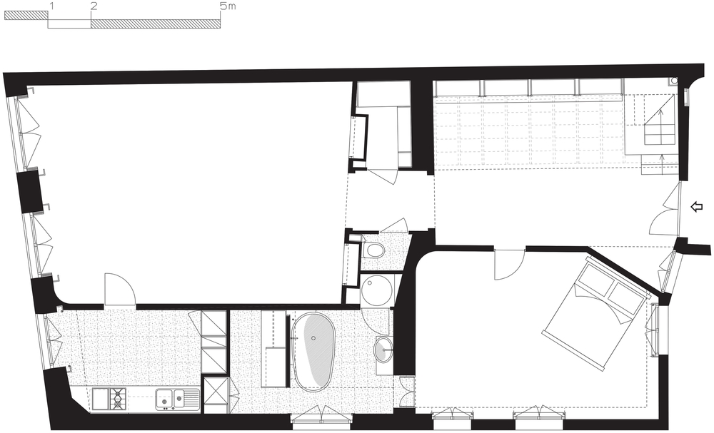
Restructuration d'un appartement, Paris 2ème
études et réalisation : 2002
maîtrise d’ouvrage : Privée
maîtrise d’oeuvre : Damien Brambilla Architecte
mission : BASE + OPC + EXE
surface habitable : 110m²
montant travaux : NC
maîtrise d’ouvrage : Privée
maîtrise d’oeuvre : Damien Brambilla Architecte
mission : BASE + OPC + EXE
surface habitable : 110m²
montant travaux : NC

